CONTACT
PROJECTS
PROFILE
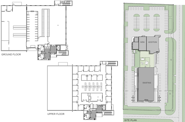
Comcast Homestead Facility
New Warehouse Building
Homestead, Florida